湖南省湘乡市人民法院拍卖公告
拍卖标的物
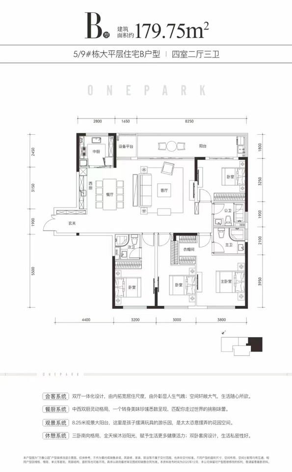
湖南省长沙市岳麓区金星北路二段169号人健万象悦府9栋302(实勘:万象府台三期)【产权证号:湘(2023)长沙市不动产权第0206745、湘(2023)长沙市不动产权第0206746;建筑面积:179.74平方米】房产。
起拍价为325万元,保证金为30万元,增价幅度为1万元及其倍数。
特别提醒:拍卖人对拍卖标的物所作的说明和提供的视频资料、图片等,仅供竞买人参考,不构成对标的物的任何担保,法院不承担本标的瑕疵保证。有意者请亲自实地看样,未看样的竞买人视为对本标的实物现状的确认,责任自负。
看样时间:法拍房是由处置法院统一组织看样,一般是安排在开拍时间前的3-5天,如需看样请于处置法院联系。
如您担心法拍房风险问题,如您想省心省事,想安心放心,如您能接受合理付费服务,可委托(湖南法拍网法拍房地产经纪有限公司)辅助竞拍。
我们可为您竞拍长沙法拍房提供以下专业服务:
1、竞拍前:审核贷款资质、推荐房源、分析房源优势、预约看房、带您看房、帮助看房(拍照拍视频)、调查房源风险,出具风险尽调报告(确认是否限购、能否贷款、拍卖原因、欠款数额、原房东背景、房屋产权瑕疵、产权性质、评估税费、租赁占用、各类欠费、户口、学区学位情况、凶宅、小区情况等等)。
2、竞拍中:专业竞拍策略、辅助竞拍、指导交保、帮助代拍等。
3、竞拍后:办理银行贷款、代办后续过户所有流程(法院递交资料、领取文书、解查封、解抵押、纳税、过户、办证、落户等)。
我们负责过户下证,负责清场腾房,负责收房交付到您手里,风险我们兜底。
| 标的物调查情况表 | |||
| 执行案号 | (2024)湘0381执恢108号 | ||
| 标的物名称 | 湖南省长沙市岳麓区金星北路二段169号人健万象悦府9栋302(实勘:万象府台三期)房产 | ||
| 调查情况 | 1.标的物所在地(或为何人保管) | 湖南省长沙市岳麓区金星北路二段169号人健万象悦府9栋302(实勘:万象府台三期)房产 | |
| 2.产权证书及存放地、标的物产权信息 | 不动产权证号:湘(2023)长沙市不动产权第0206745、湘(2023)长沙市不动产权第0206746;存放地:抵押权人;标的物产权信息:(1)共有情况:姚某某、张某某名下;(2)房屋用途:住宅;(3)土地性质:出让;(4)土地用途:住宅;(5)房屋结构:钢混结构 | ||
| 3.钥匙控制情况(是否需要强制开锁) | |||
| 4.查封、抵押情况(是否本院首封或有无资产处置权限) | 已被湘乡市人民法院查封,有抵押。 | ||
| 5.有无租赁?(租赁范围,租赁期限,租金数额,租金支付的起止日期,租赁合同,租户姓名,住址及联系电话等) | / | ||
| 6.房屋占用及腾房及其联系方式 | 毛坯 | ||
| 7.优先购买权 | / | ||
| 8.其他需要说明的情况(学位、税费、水、电、气、物业、装修、总楼层及所在楼层、朝向、面积)可另附材料 | 周边配套双学区,小学麓山国际实验小学,中学长郡双语谷山实验中学,据业主所述,学位均未使用,未落入户口,具体是否使用请竞买人自行确认;建筑面积:179.74平方米;房屋户型:四室两厅三卫;房屋所在层数:3,总层数:3/31层(1楼入户大堂为挑高架空层);房屋朝向:南北通透;建成年代:约2022年;装修状况:毛坯;水、电、气欠费情况:/;交通:有4号线、6号线地铁站、3路、69路、371路、288路等公交。 | ||








所在小区:万象府台