长沙市岳麓区人民法院拍卖公告
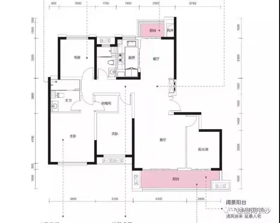
拍卖标的:长沙市岳麓区平川路38号华润琨瑜府3栋3201(权证号码:20210303368),房屋用途:住宅,建筑面积:163.70平方米,分摊面积:40.47平方米,产权来源:买卖,产权产别:私有房产,户型为四房两厅,房屋所在层数/总层数:32/33。建成时间2020-12-29,发证时间2021-09-03。其他未尽事宜具体情况请各竞买人自行查看了解,并承担相应风险。(注:一切以实物为准)
起拍价:2080000元,保证金:21万元,增价幅度:2000元(以及其整倍数)。
特别提醒:拍卖人对拍卖标的物所作的说明和提供的视频资料、图片等,仅供竞买人参考,不构成对标的物的任何担保,法院不承担本标的瑕疵保证。有意者请亲自实地看样,未看样的竞买人视为对本标的实物现状的确认,责任自负。








所在小区:华润琨瑜府